本データベースは、所期の目的を達成いたしましたので、令和3年12月8日の更新分をもって停止させていただきました。
最終更新日以降の登録意匠権のデータにつきましては、独立行政法人工業所有権情報・研修館が運営する「特許情報プラットフォーム|J-PlatPat」にてご確認ください。
A-1 建物 - 建築物の外観の登録意匠権
A-1 建物:
ビルディング、オフィスビル、商業ビル、超高層マンション、タワーマンション、興行場、学校、体育館、病院、劇場、観覧場、集会場、展示場、百貨店、市場、ダンスホール、遊技場、公衆浴場、旅館、工場、ホテル、物流倉庫
| 意匠登録番号 | 意匠に係る物品 | 図 面 |
| 1700517 | バッテリー交換ステーション | ![]() |
| 意匠権者 | ||
| 杭州海康机器人技術有限公司 | ||
| 出願日 | 登録日 | |
| 2020.12.22 | 2021.11.5 | |
| 意匠登録番号 | 意匠に係る物品 | 図 面 |
| 1700416 | 展示場 | ![]() |
| 意匠権者 | ||
| マーコール インターナショナル ホームファニシングカンパニー、リミテッド | ||
| 出願日 | 登録日 | |
| 2020.9.4 | 2021.11.5 | |
| 意匠登録番号 | 意匠に係る物品 | 図 面 |
| 1700360 | 一組の建築物 | ![]() |
| 意匠権者 | ||
| 大坪和朗 | ||
| 出願日 | 登録日 | |
| 2021.3.3 | 2021.11.5 | |
| 意匠登録番号 | 意匠に係る物品 | 図 面 |
| 1700214 | 電気自動車用バッテリー 交換ステーション |
![]() |
| 意匠権者 | ||
| 蔚来汽車科技(安徽)有限公司 | ||
| 出願日 | 登録日 | |
| 2020.11.23 | 2021.11.2 | |
| 意匠登録番号 | 意匠に係る物品 | 図 面 |
| 1700172 | 電気自動車用バッテリー 交換ステーション |
![]() |
| 意匠権者 | ||
| 蔚来汽車科技(安徽)有限公司 | ||
| 出願日 | 登録日 | |
| 2020.11.23 | 2021.11.2 | |
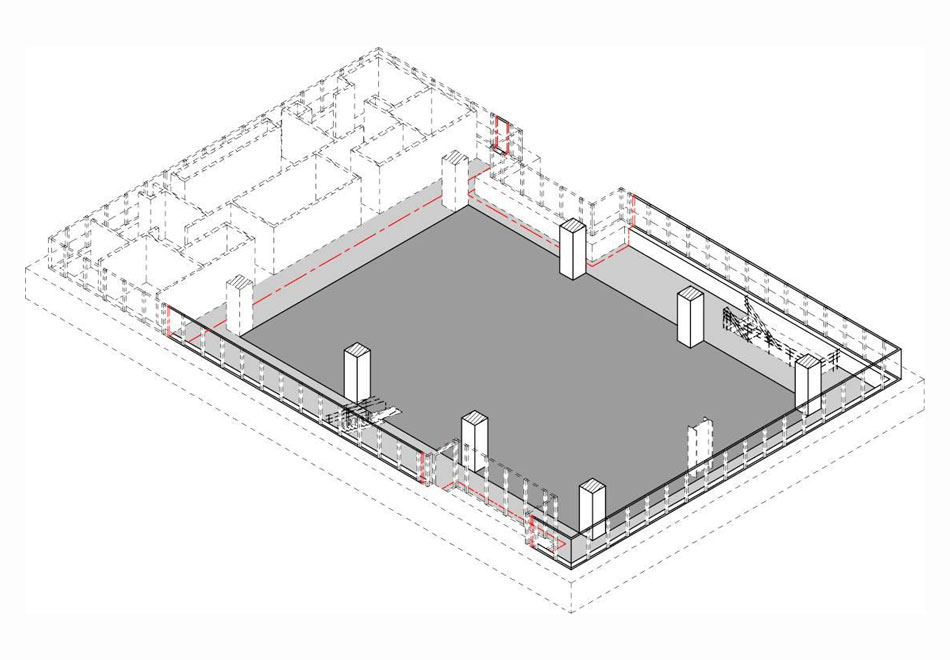
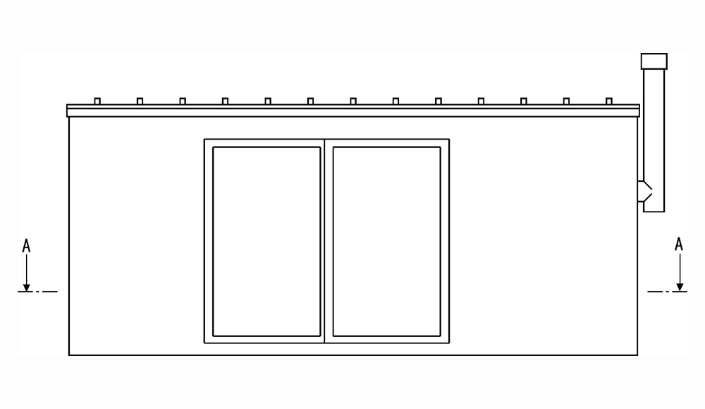
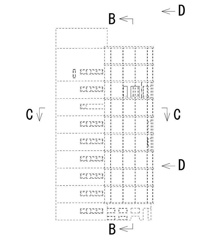
| 意匠登録番号 | 意匠に係る物品 | 図 面 |
| 1699817 | オフィス用建築物 | ![]() |
| 意匠権者 | ||
| 株式会社大林組 | ||
| 出願日 | 登録日 | |
| 2020.10.9 | 2021.10.29 | |
| 意匠登録番号 | 意匠に係る物品 | 図 面 |
| 1698994 | 商業用建築物 | ![]() |
| 意匠権者 | ||
| 株式会社良品計画 | ||
| 出願日 | 登録日 | |
| 2021.5.31 | 2021.10.19 | |
| 意匠登録番号 | 意匠に係る物品 | 図 面 |
| 1698993 | 商業用建築物 | ![]() |
| 意匠権者 | ||
| 株式会社良品計画 | ||
| 出願日 | 登録日 | |
| 2021.5.31 | 2021.10.19 | |
| 意匠登録番号 | 意匠に係る物品 | 図 面 |
| 1694298 | オフィス | ![]() |
| 意匠権者 | ||
| 株式会社大林組 | ||
| 出願日 | 登録日 | |
| 2020.11.19 | 2021.8.18 | |
| 意匠登録番号 | 意匠に係る物品 | 図 面 |
| 1694297 | オフィス | ![]() |
| 意匠権者 | ||
| 株式会社大林組 | ||
| 出願日 | 登録日 | |
| 2020.11.19 | 2021.8.18 | |
| 意匠登録番号 | 意匠に係る物品 | 図 面 |
| 1693806 | 飲食店 | ![]() |
| 意匠権者 | ||
| 有限会社親和商事 | ||
| 出願日 | 登録日 | |
| 2020.6.26 | 2021.8.12 | |
| 意匠登録番号 | 意匠に係る物品 | 図 面 |
| 1687154 | オフィス | ![]() |
| 意匠権者 | ||
| 株式会社大林組 | ||
| 出願日 | 登録日 | |
| 2020.11.19 | 2021.5.19 | |
| 意匠登録番号 | 意匠に係る物品 | 図 面 |
| 1687153 | オフィス | ![]() |
| 意匠権者 | ||
| 株式会社大林組 | ||
| 出願日 | 登録日 | |
| 2020.11.19 | 2021.5.19 | |
| 意匠登録番号 | 意匠に係る物品 | 図 面 |
| 1687152 | オフィス | ![]() |
| 意匠権者 | ||
| 株式会社大林組 | ||
| 出願日 | 登録日 | |
| 2020.11.19 | 2021.5.19 | |
| 意匠登録番号 | 意匠に係る物品 | 図 面 |
| 1686927 | オフィス用建築物 | ![]() |
| 意匠権者 | ||
| 株式会社大林組 | ||
| 出願日 | 登録日 | |
| 2020.10.9 | 2021.5.14 | |
| 意匠登録番号 | 意匠に係る物品 | 図 面 |
| 1686926 | オフィス用建築物 | ![]() |
| 意匠権者 | ||
| 株式会社大林組 | ||
| 出願日 | 登録日 | |
| 2020.10.9 | 2021.5.14 | |
| 意匠登録番号 | 意匠に係る物品 | 図 面 |
| 1686834 | オフィス用建築物 | ![]() |
| 意匠権者 | ||
| 株式会社大林組 | ||
| 出願日 | 登録日 | |
| 2020.10.9 | 2021.5.14 | |
| 意匠登録番号 | 意匠に係る物品 | 図 面 |
| 1686833 | オフィス用建築物 | ![]() |
| 意匠権者 | ||
| 株式会社大林組 | ||
| 出願日 | 登録日 | |
| 2020.10.9 | 2021.5.14 | |
| 意匠登録番号 | 意匠に係る物品 | 図 面 |
| 1686832 | オフィス用建築物 | ![]() |
| 意匠権者 | ||
| 株式会社大林組 | ||
| 出願日 | 登録日 | |
| 2020.10.9 | 2021.5.14 | |
| 意匠登録番号 | 意匠に係る物品 | 図 面 |
| 1686831 | オフィス用建築物 | ![]() |
| 意匠権者 | ||
| 株式会社大林組 | ||
| 出願日 | 登録日 | |
| 2020.10.9 | 2021.5.14 | |
| 意匠登録番号 | 意匠に係る物品 | 図 面 |
| 1686830 | オフィス用建築物 | ![]() |
| 意匠権者 | ||
| 株式会社大林組 | ||
| 出願日 | 登録日 | |
| 2020.10.9 | 2021.5.14 | |
| 意匠登録番号 | 意匠に係る物品 | 図 面 |
| 1686829 | レジャー施設用建築物 | ![]() |
| 意匠権者 | ||
| 株式会社大林組 | ||
| 出願日 | 登録日 | |
| 2020.9.25 | 2021.5.14 | |
| 意匠登録番号 | 意匠に係る物品 | 図 面 |
| 1686828 | レジャー施設用建築物 | ![]() |
| 意匠権者 | ||
| 株式会社大林組 | ||
| 出願日 | 登録日 | |
| 2020.9.25 | 2021.5.14 | |
| 意匠登録番号 | 意匠に係る物品 | 図 面 |
| 1686827 | レジャー施設用建築物 | ![]() |
| 意匠権者 | ||
| 株式会社大林組 | ||
| 出願日 | 登録日 | |
| 2020.9.25 | 2021.5.14 | |
| 意匠登録番号 | 意匠に係る物品 | 図 面 |
| 1686826 | レジャー施設用建築物 | ![]() |
| 意匠権者 | ||
| 株式会社大林組 | ||
| 出願日 | 登録日 | |
| 2020.9.25 | 2021.5.14 | |
| 意匠登録番号 | 意匠に係る物品 | 図 面 |
| 1686825 | レジャー施設用建築物 | ![]() |
| 意匠権者 | ||
| 株式会社大林組 | ||
| 出願日 | 登録日 | |
| 2020.9.25 | 2021.5.14 | |
| 意匠登録番号 | 意匠に係る物品 | 図 面 |
| 1686824 | レジャー施設用建築物 | ![]() |
| 意匠権者 | ||
| 株式会社大林組 | ||
| 出願日 | 登録日 | |
| 2020.9.25 | 2021.5.14 | |
| 意匠登録番号 | 意匠に係る物品 | 図 面 |
| 1686613 | オフィスビル | ![]() |
| 意匠権者 | ||
| 日鉄エンジニアリング株式会社 | ||
| 出願日 | 登録日 | |
| 2020.5.27 | 2021.5.12 | |
| 意匠登録番号 | 意匠に係る物品 | 図 面 |
| 1686411 | 商業用建築物 | ![]() |
| 意匠権者 | ||
| 株式会社大林組 | ||
| 出願日 | 登録日 | |
| 2020.6.23 | 2021.5.10 | |
| 意匠登録番号 | 意匠に係る物品 | 図 面 |
| 1686317 | 商業用建築物 | ![]() |
| 意匠権者 | ||
| 株式会社大林組 | ||
| 出願日 | 登録日 | |
| 2020.6.23 | 2021.5.10 | |
| 意匠登録番号 | 意匠に係る物品 | 図 面 |
| 1686316 | 商業用建築物 | ![]() |
| 意匠権者 | ||
| 株式会社大林組 | ||
| 出願日 | 登録日 | |
| 2020.6.23 | 2021.5.10 | |
| 意匠登録番号 | 意匠に係る物品 | 図 面 |
| 1685019 | オフィス | ![]() |
| 意匠権者 | ||
| 株式会社竹中工務店 | ||
| 出願日 | 登録日 | |
| 2020.11.30 | 2021.4.16 | |
| 意匠登録番号 | 意匠に係る物品 | 図 面 |
| 1684760 | オフィス | ![]() |
| 意匠権者 | ||
| 清水建設株式会社 | ||
| 出願日 | 登録日 | |
| 2020.7.13 | 2021.4.14 | |
| 意匠登録番号 | 意匠に係る物品 | 図 面 |
| 1684759 | オフィス | ![]() |
| 意匠権者 | ||
| 清水建設株式会社 | ||
| 出願日 | 登録日 | |
| 2020.7.13 | 2021.4.14 | |
| 意匠登録番号 | 意匠に係る物品 | 図 面 |
| 1684758 | オフィス | ![]() |
| 意匠権者 | ||
| 清水建設株式会社 | ||
| 出願日 | 登録日 | |
| 2020.7.13 | 2021.4.14 | |
| 意匠登録番号 | 意匠に係る物品 | 図 面 |
| 1684747 | オフィスビル | ![]() |
| 意匠権者 | ||
| 日鉄エンジニアリング株式会社 | ||
| 出願日 | 登録日 | |
| 2020.5.27 | 2021.4.14 | |
| 意匠登録番号 | 意匠に係る物品 | 図 面 |
| 1684284 | 研修センター | ![]() |
| 意匠権者 | ||
| 大和ハウス工業株式会社 | ||
| 出願日 | 登録日 | |
| 2020.7.22 | 2021.4.8 | |
| 意匠登録番号 | 意匠に係る物品 | 図 面 |
| 1684283 | 研修センター | ![]() |
| 意匠権者 | ||
| 大和ハウス工業株式会社 | ||
| 出願日 | 登録日 | |
| 2020.7.22 | 2021.4.8 | |
| 意匠登録番号 | 意匠に係る物品 | 図 面 |
| 1684098 | テントキャビン | ![]() |
| 意匠権者 | ||
| 有限会社オンサイト計画設計事務所 | ||
| 出願日 | 登録日 | |
| 2020.10.29 | 2021.4.6 | |
| 意匠登録番号 | 意匠に係る物品 | 図 面 |
| 1683944 | 複合建築物 | ![]() |
| 意匠権者 | ||
| 株式会社杏林堂薬店 | ||
| 出願日 | 登録日 | |
| 2020.7.17 | 2021.4.5 | |
| 意匠登録番号 | 意匠に係る物品 | 図 面 |
| 1683559 | 運搬可能な小屋 | ![]() |
| 意匠権者 | ||
| 有限会社梅村工務店 | ||
| 出願日 | 登録日 | |
| 2020.8.26 | 2021.3.30 | |
| 意匠登録番号 | 意匠に係る物品 | 図 面 |
| 1683545 | 葬儀用建築物 | ![]() |
| 意匠権者 | ||
| 株式会社ユニクエスト | ||
| 出願日 | 登録日 | |
| 2020.7.1 | 2021.3.30 | |
| 意匠登録番号 | 意匠に係る物品 | 図 面 |
| 1683544 | 葬儀用建築物 | ![]() |
| 意匠権者 | ||
| 株式会社ユニクエスト | ||
| 出願日 | 登録日 | |
| 2020.7.1 | 2021.3.30 | |
| 意匠登録番号 | 意匠に係る物品 | 図 面 |
| 1681307 | コンテナー | ![]() |
| 意匠権者 | ||
| 株式会社北信越地域資源研究所 | ||
| 出願日 | 登録日 | |
| 2020.2.7 | 2021.3.1 | |
| 意匠登録番号 | 意匠に係る物品 | 図 面 |
| 1677479 | オフィス | ![]() |
| 意匠権者 | ||
| 株式会社大林組 | ||
| 出願日 | 登録日 | |
| 2020.4.1 | 2021.1.5 | |
| 意匠登録番号 | 意匠に係る物品 | 図 面 |
| 1677478 | オフィス | ![]() |
| 意匠権者 | ||
| 株式会社大林組 | ||
| 出願日 | 登録日 | |
| 2020.4.1 | 2021.1.5 | |
| 意匠登録番号 | 意匠に係る物品 | 図 面 |
| 1677477 | オフィス | ![]() |
| 意匠権者 | ||
| 株式会社大林組 | ||
| 出願日 | 登録日 | |
| 2020.4.1 | 2021.1.5 | |
| 意匠登録番号 | 意匠に係る物品 | 図 面 |
| 1676942 | 液化天然ガススタンド用 組立家屋 |
![]() |
| 意匠権者 | ||
| エア・ウォーター株式会社 三菱商事株式会社 | ||
| 出願日 | 登録日 | |
| 2020.4.28 | 2020.12.24 | |
| 意匠登録番号 | 意匠に係る物品 | 図 面 |
| 1676941 | 液化天然ガススタンド用 組立家屋 |
![]() |
| 意匠権者 | ||
| エア・ウォーター株式会社 三菱商事株式会社 | ||
| 出願日 | 登録日 | |
| 2020.4.28 | 2020.12.24 | |
| 意匠登録番号 | 意匠に係る物品 | 図 面 |
| 1676940 | 液化天然ガススタンド用 組立家屋 |
![]() |
| 意匠権者 | ||
| エア・ウォーター株式会社 三菱商事株式会社 | ||
| 出願日 | 登録日 | |
| 2020.4.28 | 2020.12.24 | |
| 意匠登録番号 | 意匠に係る物品 | 図 面 |
| 1675729 | オフィス | ![]() |
| 意匠権者 | ||
| 株式会社大林組 | ||
| 出願日 | 登録日 | |
| 2020.4.1 | 2020.12.9 | |
| 意匠登録番号 | 意匠に係る物品 | 図 面 |
| 1675728 | オフィス | ![]() |
| 意匠権者 | ||
| 株式会社大林組 | ||
| 出願日 | 登録日 | |
| 2020.4.1 | 2020.12.9 | |
| 意匠登録番号 | 意匠に係る物品 | 図 面 |
| 1675727 | オフィス | ![]() |
| 意匠権者 | ||
| 株式会社大林組 | ||
| 出願日 | 登録日 | |
| 2020.4.1 | 2020.12.9 | |
| 意匠登録番号 | 意匠に係る物品 | 図 面 |
| 1674418 | マンション | ![]() |
| 意匠権者 | ||
| ミサワホーム株式会社 | ||
| 出願日 | 登録日 | |
| 2020.4.1 | 2020.11.20 | |
| 意匠登録番号 | 意匠に係る物品 | 図 面 |
| 1674242 | オフィス | ![]() |
| 意匠権者 | ||
| 株式会社大林組 | ||
| 出願日 | 登録日 | |
| 2020.4.1 | 2020.11.18 | |
| 意匠登録番号 | 意匠に係る物品 | 図 面 |
| 1674238 | 組立構造物 | ![]() |
| 意匠権者 | ||
| 株式会社大林組 | ||
| 出願日 | 登録日 | |
| 2020.4.1 | 2020.11.18 | |
| 意匠登録番号 | 意匠に係る物品 | 図 面 |
| 1674140 | オフィス | ![]() |
| 意匠権者 | ||
| 株式会社大林組 | ||
| 出願日 | 登録日 | |
| 2020.4.1 | 2020.11.18 | |
| 意匠登録番号 | 意匠に係る物品 | 図 面 |
| 1674138 | 組立構造物 | ![]() |
| 意匠権者 | ||
| 株式会社大林組 | ||
| 出願日 | 登録日 | |
| 2020.3.27 | 2020.11.18 | |
| 意匠登録番号 | 意匠に係る物品 | 図 面 |
| 1674137 | 組立構造物 | ![]() |
| 意匠権者 | ||
| 株式会社大林組 | ||
| 出願日 | 登録日 | |
| 2020.3.27 | 2020.11.18 | |
| 意匠登録番号 | 意匠に係る物品 | 図 面 |
| 1674136 | 組立構造物 | ![]() |
| 意匠権者 | ||
| 株式会社大林組 | ||
| 出願日 | 登録日 | |
| 2020.3.27 | 2020.11.18 | |
| 意匠登録番号 | 意匠に係る物品 | 図 面 |
| 1671773 | 商業用建築物 | ![]() |
| 意匠権者 | ||
| 株式会社ファーストリテイリング | ||
| 出願日 | 登録日 | |
| 2020.4.1 | 2020.10.15 | |
| 意匠登録番号 | 意匠に係る物品 | 図 面 |
| 1673702 | マンション | ![]() |
| 意匠権者 | ||
| ミサワホーム株式会社 | ||
| 出願日 | 登録日 | |
| 2020.4.1 | 2020.11.11 | |
| 意匠登録番号 | 意匠に係る物品 | 図 面 |
| 1673701 | マンション | ![]() |
| 意匠権者 | ||
| ミサワホーム株式会社 | ||
| 出願日 | 登録日 | |
| 2020.4.1 | 2020.11.11 | |





























































